“A mai napnak az a témája, hogy szükséges-e ez a fejlesztés ezen a területen”, mondta Molnár Etele alpolgármester, a közelmúltban a Kacsa-tó környéki projekt kapcsán rendezett szakmai fórum házigazdája.
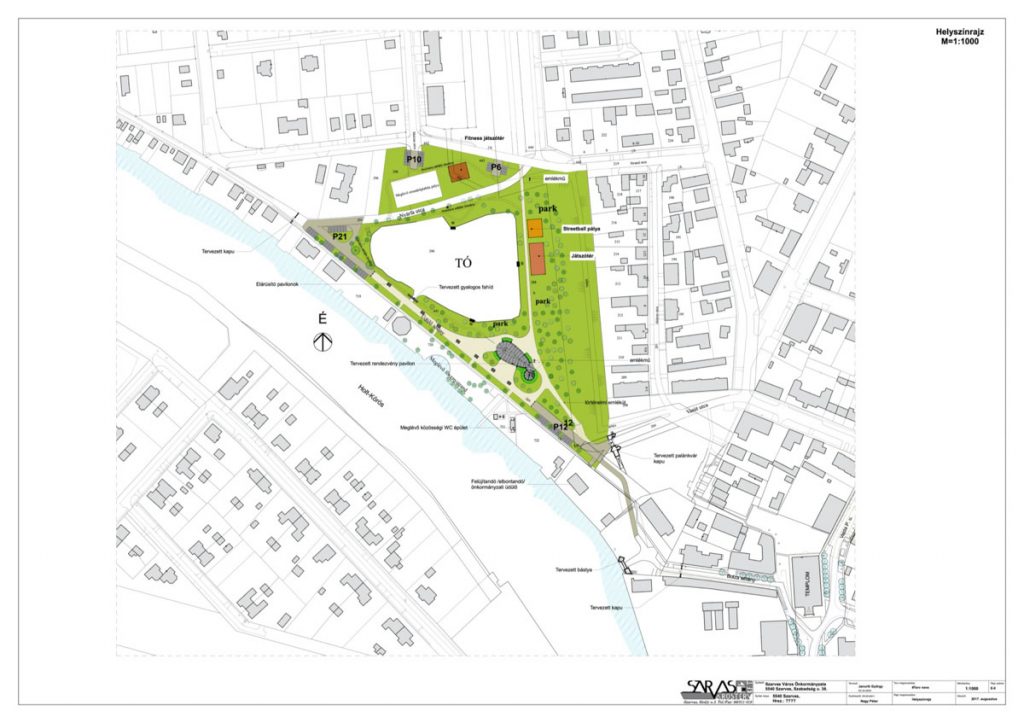
Tóth Sándor projektgazda elmondta, hogy már az 1990-es Szarvas és Vidéke újságban megjelent Kiss András technikus rajza a Kacsa-tó rendezési tervéről, amiben platánsor, rönkvár és pavilonsor is szerepelt.
Felelevenítette, hogy 2015-ben volt az első lakossági fórum, aminek a fő témája a tó bekerítése volt, illetve a többi tervezett elem is ismertetésre került. Ezt még két lakossági fórum követte, 2015. szeptember 15-én, és november 18-án. Utóbbi a területen levő önkormányzati üdülőben volt, amin tervismertetőt is tartottak.
2015 és 2021 között a képviselő-testület 11 alkalommal tárgyalta a témát, ugyanennyi alkalommal a gazdasági és az ügyrendi bizottság is.
Három alkalommal adott be az önkormányzat a fejlesztésre támogatási kérelmet: először 2016 májusában a történelmi Magyarország középpontjának a fejlesztésével komplex módon, majd 2017 augusztusában már csak a tó és környezetének turisztikai fejlesztésére. 2020 decemberében, amikor újranyitották a a felhívást, a 2017-es aktualizált anyagot küldték be.
2021. április 13-án érkezett a hír arról, hogy 730 milliós támogatást ítéltek meg a fejlesztés javára.

Részben kész tervekkel lett beadva a pályázat, aminek a megvalósítására másfél év van, azaz az engedélyezések miatt nem egyszerű változtatni rajta.
Az Auditus projektmenedzsere elmondta, hogy évente minimum hat rendezvényt vállaltak; ezek a majális, a városnap július 23-án, a Körös Kupa kajakverseny, a Halasnapok, az Új kenyér ünnepe, a Szilvanapok, plusz a nemzeti összetartozás napja (június 4.), egy szüreti fesztivál, és a Minden ami Szarvas fesztiválja ősszel. 16222 fő per év indikátort kell hozni, ehhez pedig kell a méret is.
Dr. Melis János picit felháborodottan szállt be az előzmények ismertetésébe. Szarvas város címzetes főjegyzője röviden elmondta, milyen telefont, illetve levelet kapott a környék lakóitól, és megragadta az alkalmat ahhoz, hogy kifejtse, a Kacsa-tó környéke 15 ezer szarvasié, majd feltett egy tisztázó kérdést:
Kell ez a 730 millió nekünk?
A környék képviselője, Csanádi László két, a környék lakói által kifogásolt részletet említett, a kerítést, illetve a rendezvényházat, amivel kapcsolatban a környék lakói attól tartottak, hogy hangos lesz.
Az előzőről megnyugvással vette tudomásul, hogy Tóth Sándor felsorolásában nem szerepelt. Utóbbival kapcsolatban Csasztvan András biztosította a fórum résztvevőit, ha a Cervinus Teátrum fogja üzemeltetni, nem lesz zavaró az ott lakóknak.
Csanádi elfogadta, hogy a méretében az idő rövidsége miatt nem lehet változtatni, de feltette a kérdést, hogy a magasságában vagy a formájában lehet-e?

Váradiné Kintzly Ágnes is a tetőt találja túl nagynak. Véleménye szerint az építmény ebben a formában markánsan fogja befolyásolni a tó környékének látványát.
Lukácsi László Szarvas város főépítésze szerint ebben a méretben két út van, az organikus forma természethez közeli anyagok felhasználásával, illetve a nagyon modern forma transzparens felületekkel. “A kettő között pedig ebben a méretben van az ipari csarnok”, mondta.
“Ez egy igényes épület”, jelentette ki. “Ezt az épületet teljes mellszélességgel tudom védeni, ekkora méretben ezt lehet csinálni”, tette hozzá. Lukácsi László rutinosan mérte fel a helyzetet: a tervezés folyamata régre nyúlik vissza; akkor is voltak ellenzői, most is, csak most a véleményformáló szereplők változtak.
A fórum résztvevői rendre elmentek az időfaktor mellett, pedig az gyorsan kiderült, hogy a befejezés határideje miatt szűkre szabott idő mellett nincs lehetőség arra, hogy a Teknőst a lebontandó önkormányzati üdülő helyére tolják, vagy kisebbre nagyobbra alakítsák. A lepattanó pénz miatt a normál három év helyett ezt be kell fejezni 2022 végéig.
Végül a fórum nagyjából ott fejeződött be, ahogy azt dr. Melis János címzetes főjegyző már hozzászólásában is summázta: Itt csak egy kérdés van, kell vagy nem?



