2006-ban lettek lebontva az épületek, majd az akkori önkormányzat, úgy 2007-2008 magasságában a rendezési terven oda álmodta meg a piacteret, nem a mostani területre – mondta egy korábbi beszélgetésünk során Sinka Imre, Békésszentandrás polgármestere.
Arra a kérdésre, hogy miért nem a jelenlegi piac területén valósul meg a fejlesztés, a következő magyarázatot adta: ezek a pályázatok nagyon gyors lebonyolításúak voltak, így nem volt lehetőség a procedúra véghezvitelére.
– Egy ilyen rendezési terv módosítása nem egyszerű folyamat, mert rengeteg engedélyező hatóság mellett egy legalább egyéves nagyon drága eljárásról van szó, ezért is került ide a piac, mert nem lehet más területre benyújtani a pályázatot, csakis olyanra, ami piactérnek van bejegyezve a rendezési tervben
A TOP keretében jött el a lehetőség a 2016-ban megálmodott piaccsarnok építésére, amire Csabacsűd vezetésével konzorciumban be is adták erre a pályázatot. A végigvitele nem volt egyszerű, hiszen konzorciumos szerződések, kivitelezések sohasem egyszerűek, és itt két önkormányzat elképzeléseit kellett összehangolni.
– Szerencsére Csabacsűddel nagyon jó a viszonyunk, nagyon rugalmasan működött a dolog – jegyezte meg Sinka Imre.
A projekt áthúzódott két cikluson, és most jutottak odáig, hogy februárra át tudták adni a területet a kivitelező Integrál Építő Zrt.–nek. Az árak közben országszerte elszálltak, így azok még második körben is 8 millióval magasabbak lettek, mint a pályázatban szerepel. Ennek kompenzálására benyújtottak forrásigényüket az irányítóhatóság felé.
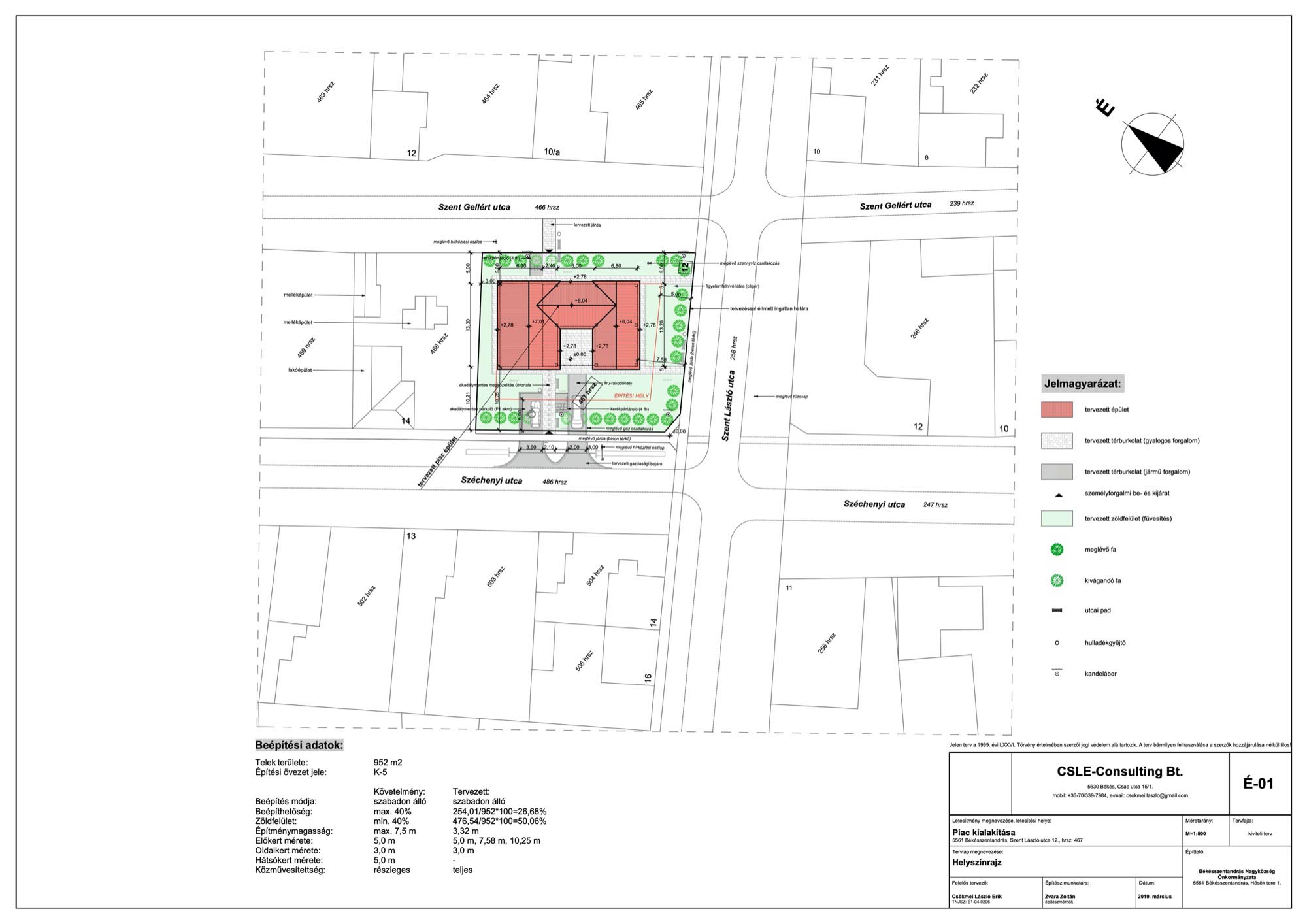
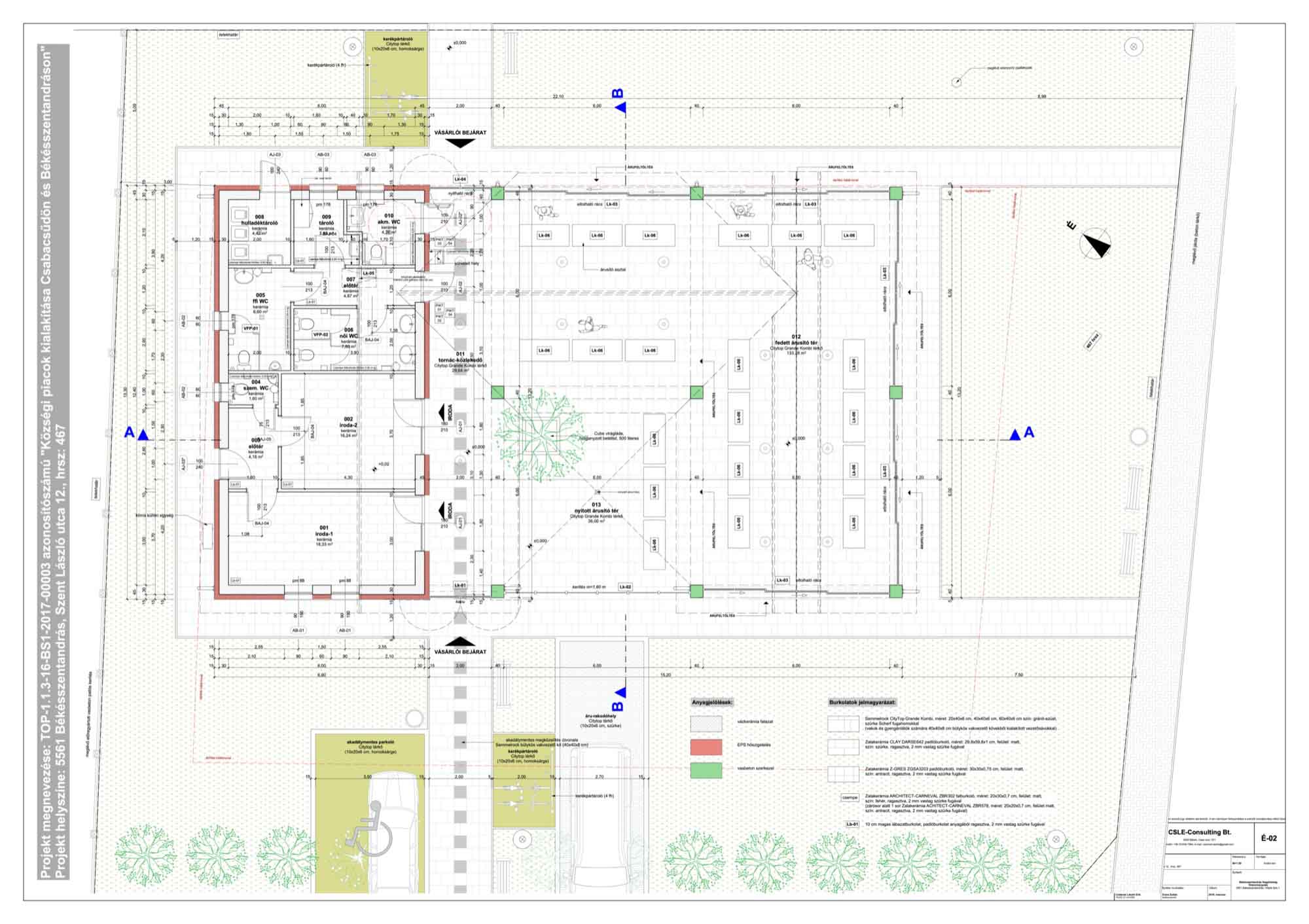
Elsődleges cél, hogy a helyi gazdálkodóknak, kertbarátoknak egy olyan teret biztosítsanak, ahol a lakosság kulturált körülmények között tud hozzáférni a termékeikhez. Az árusításért helypénzt nem fognak szedni, ezzel is a helyi termelőket szeretnék támogatni. Lesz vizesblokk és iroda is. Felmerült, hogy itt alakítják ki a falugazdász, illetve a közterület-fenntartó irodáját is.
– Eddig a katolikus oldal egy méltatlanul hanyagolt központi területe most újraéled, egy új színfoltja lehet a településnek. Az elmúlt évek fejlesztései többnyire 44-estől délre levő református oldalon realizálódtak. Igaz, hogy a déli oldal mozgalmasabb, de most, hogy az M44-es elviszi a forgalom nagyobb részét, az átjárhatóság az északi és a déli, avagy a katolikus és a református rész között nagyban javult – állapította meg a település polgármestere.
Zárásként a régi piac jövőjéről kérdeztük. Ezzel kapcsolatban az a terv, hogy egy kicsi, de impozáns díszteret alakítsanak ki, ami a későbbiekben közösségi tér szerepét tölthetné be, de a szépítésre is vannak ötletek. Ezek között szerepel szökőkút, de egy kerékpárút, esetleg sétány kiindulópontja is lehetne itt. Hely lenne rá.


